T3 Chaprais Besançon
Chaprais
T3 Chaprais Besançon 880.75€ C.C
- 3p
- 2ch
Résidence Le Mondrian
Idéalement située dans le quartier des Chaprais à Besançon, la résidence Le Mondrian incarne parfaitement les attentes d'un style de vie urbain.
-Idélament située à 10 minutes à pied de la gare SNCF,
-à proximité des écoles,
-centre-ville à pied accessible en quelques minutes,
-proximité de tous les commerces et services,
-parc des Chaprais à 50 mètres.
Vidéo
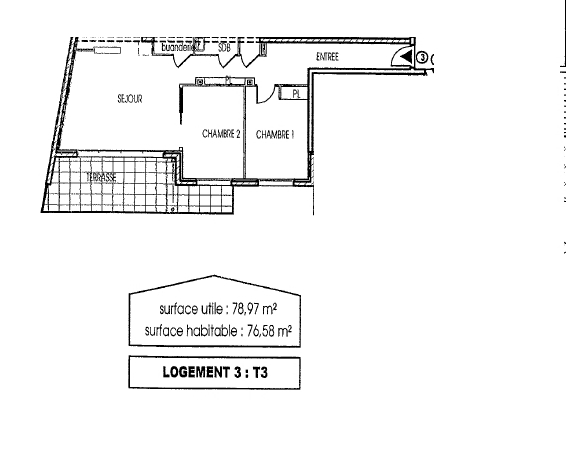
Dans la résidence calme, sécurisée et de standing "Le Mondrian" cet appartement de type 3 de 76,58 m² se compose :
- d'une entrée
- d'une cuisine équipée ouverte
- d'un séjour
- de deux chambres
- d'une salle de bain
- d'un WC
Dispose d'une terrasse de 17,91 m² ainsi que d'une place de parking.
Loyer : 810.75€ HC / mois + Provisions de Charges : 70€ / mois soit 880.75€ / mois
Montant du dépôt de garantie est de 810.75€.
Une régularisation des charges annuelle est réalisée.
Frais agence : 689.2€
Chauffage : individuel électrique
Eau chaude : individuel électrique
Disponible 28 Février 2026
Le montant des dépenses annuellles d'énergie pour un usage standard est estimée à 986€ par an.
(Prix moyen des énergies indexées au 15/08/2015- EN COURS DE RE-ACTUALISATION)
- Réf. MONHER
- Loyer 810,75 € / mois
- Charges 70,00 € / mois
- Honoraires 689,22 €
- Surface 76.58 m2
- Chambres 2
- Type de cuisine Aménagée
- Eau chaude Ballon électrique
- Ascenseur
- Parking
- Garage
- Cave
- Interphone
- Terrasse
- Climatisation
- 3p
- 2ch
- 2p
- 1ch
- 3p
- 2ch
- 2p
- 1ch
- 3p
- 2ch
- 2p
- 1ch
- 3p
- 2ch
- 4p
- 2ch
- 4p
- 3ch