Je recherche un bien immobilier

Zone géographique
Type de bien
 
 

T1 Bis Parc Vauban Besançon

Butte

T1 Bis Parc Vauban Besançon 508.59€ C.C

  • 2p
  • 1ch
REF : VAUMEL

Parc Vauban

La résidence Parc Vauban située à Besançon au sein de l'Ecoquartier Vauban est une réalisation signée SMCI, proposant des appartements neufs à la location. 

Idéalement située, la résidence est à proximité immédiate de tous les commerces et services du quotidien : Supermarché bio, restaurants, pharmacie...et des transports en commun (arrêt de bus Gibelotte et Voirin à quelques mètres seulement / Passage sur la ligne de bus en site propre Viotte-Temis).

La résidence est équipée de prestations de qualité : résidence entièrement sécurisée, ascenseur, stationnement en sous-sol. 

Vidéo


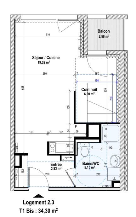
Au coeur du nouveau quartier Vauban, dans une résidence de standing calme et sécurisé "Le Parc Vauban", proche du centre-ville, cet appartement de type 1 Bis d'une superfie de 34.30m², situé au 2ème étage, se compose :
-une entrée,
-une cuisine,
-un séjour,
-un coin chambre,
-Une salle de bain - WC,

Dispose également d'une terrasse et d'une place de parking intérieure,

Loyer : 433.59€ HC/mois + Provisions de Charges : 75 €/mois soit 508.59€ / mois
Montant du dépôt de garantie est de 433.59€.
Une régularisation des charges annuelle est réalisée.
Frais agence : 308.70€

Chauffage : collectif gaz
Eau chaude : collectif gaz
Disponible le 01/01/2026

Le montant des dépenses annuellles d'énergie pour un usage standard est estimée à 222 € par an (Prix moyen des énergies indexées au 01/01/2015)

Caractéristiques de l’appartement
  • Réf. VAUMEL
  • Loyer 433,59 € / mois
  • Charges 75,00 € / mois
  • Honoraires 308,70 €
  • Surface 34.3 m2
  • Chambres 1
  • Eau chaude Collective
  • Ascenseur
  • Parking
  • Garage
  • Cave
  • Interphone
  • Terrasse
  • Climatisation
Diagnostics
Consommations (kWh/m²,an)
Emissions de GES (kg CO2/m²,an)
Autres biens du même type